20 м²
Площадь
15 м²
Жилая площадь
4 м²
Площадь кухни
-1/16
Этаж

2 199 998 ₽

110 000 ₽ за м²

ID объявления 11012882

Поделиться

Добавить в избранное

Объект №58209 ✅ ЖК «Морская Горгиппия» города - курорта Анапа, улица Ленина, дом 235
Продается Сухое помещение В ЖК Морская Горгиппия по ул. Ленина с ОКНОМ!
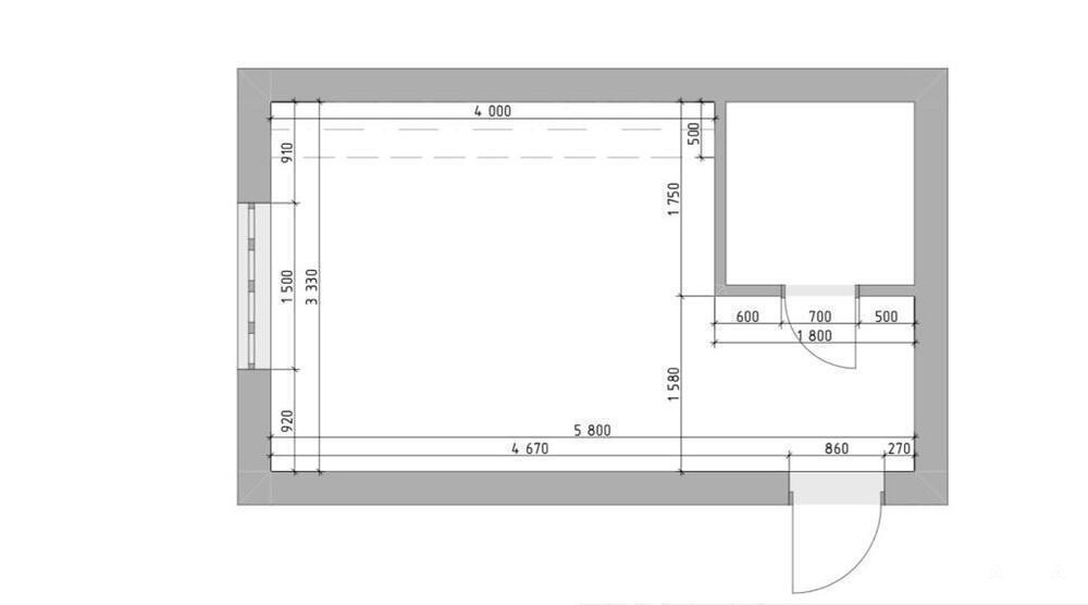
Общая площадь 19.6 кв.м,
В помещении выполнена качественный ремонт в светлых тонах.
✅Подходит для сдачи и бизнеса
Сдача такого помещения , приносит 15-20 тыс в месяц.
Пассивный доход. В доме уже есть озон, валбирис студия красоты и др. коммерция. Быстрая окупаемость!

✅Так же подходит для полноценного проживания!

✅ ИНФРАСТРУКТУРА:

Очень удобный для жизни район, все в пешей доступности. Школы, детский сад, рынок, все сетевые магазины, аптеки, остановка общественного транспорта и т.д.

- «Магнит»,

- «Пятерочка»

- Аптека 24 часа

- Удобная транспортная развязка

✅ Огромный плюсом является центральное отопление, управляющая компания подключает воду официально (платится как на обычную квартиру, квитанция)
Прилегающая территория, оснащена детской площадкой, пандусом, так же имеется лифт для людей с повышенными потребностями. В 300 метрах от дома открывается вид на Чёрное море.
В 800 метрах от комплекса находится спуск к морю.100м до остановки общественного транспорта.
Лучшая цена по соотношению цена/качество!

✅ ДОКУМЕНТЫ ПРОШЛИ ЮРИДИЧЕСКУЮ ПРОВЕРКУ И ГОТОВЫ К СДЕЛКЕ.
Оперативный показ и выход на сделку. Возможен показ онлайн.
Только наличный расчет, Ипотека не подходит. Мат капитал не принимается. Прописки нет. Сертификаты не подходят

Наша деятельность застрахована в соответствии с «Правилами страхования ответственности при осуществлении риэлторской деятельности», мы являемся действительным членом Российской гильдии риэлторов (РГР) и «Кубанской Палаты Недвижимости».
Прописки нет. Мат капитал не подходит. Ипотека только под коммерческую недвижимость. Сертификат нет
#Анапа #Квартира у моря #Море #Отдых

Дата обновления: 27 сентября 2025

Квартира Ипотека