Продажа многокомнатной квартиры

Краснодарский край, Верхнее Джемете п., Дмитрия Орехова ул., 47

74 м²
Площадь
51.4 м²
Жилая площадь
11.7 м²
Площадь кухни
1/1
Этаж

3 699 000 ₽

49 920 ₽ за м²

ID объявления 12616024

Поделиться

Добавить в избранное

Арт. 133054282 Просторная 4-комнатная квартира на своей земле — 74, 4 м² с городской пропиской в пригороде Анапы! Для большой семьи, ПМЖ и экономии на коммуналке
Продаётся тёплая, крепкая 5-комнатная квартира 74, 1 м² на собственном земельном участке в спокойном пригороде Анапы (полноценная городская прописка — все льготы, школы, медицина как в городе!). Это фактически дом в формате большой квартиры: капитальный советский дом — толстые стены, отличная теплоизоляция, зимой тепло, летом прохладно.
Коммуникации на уровне:

Центральный водопровод
Канализация: свой септик
Отопление: электрическое + твердотопливный котёл (на дровах/угле — на любой случай)
Электричество по сельскому тарифу — одно из самых выгодных в регионе (экономия огромная круглый год!)

До моря — приятная прогулка 35 минут неспешным шагом (чистый воздух, зелёные улицы, без городской суеты).
Школьный автобус подъезжает прямо к дому — забирает детей утром и привозит после уроков.
Остановка маршруток/автобусов — всего 5–7 минут пешком.
Планировка — удобная и просторная:

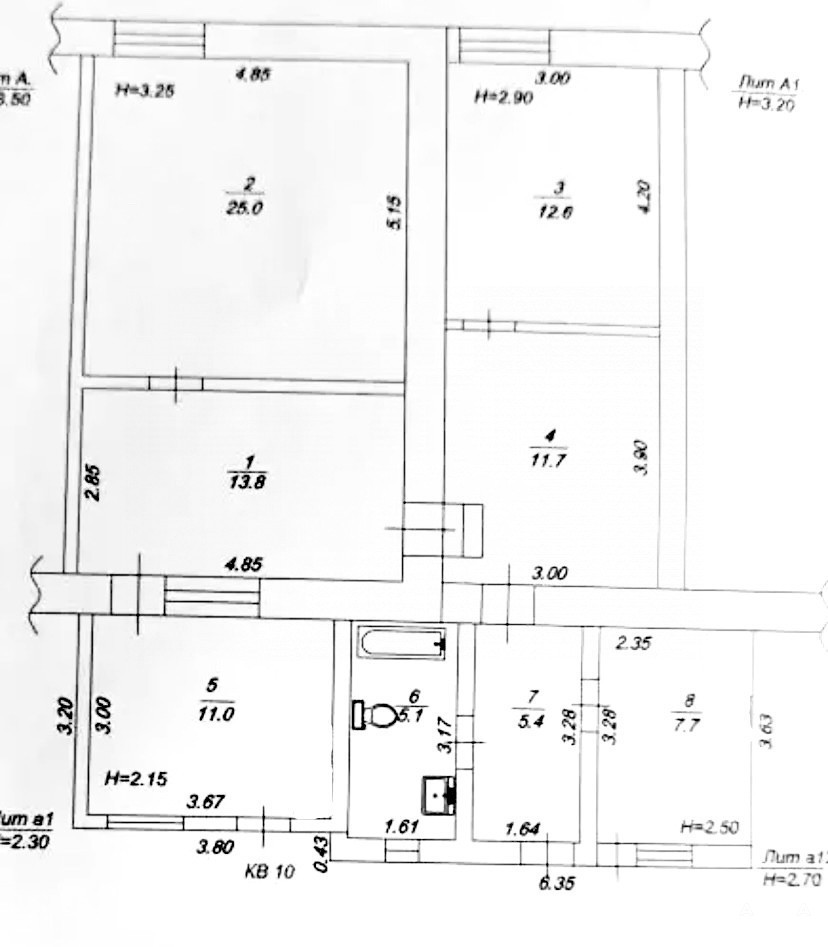
Главная комната — 25 м² (идеально под мастер-спальню, зал или семейную зону)
Комната 2 — 12, 6 м²
Комната 3 — 13, 8 м²
Комната 4 — 11 м²
Комната 5 — 7, 7 м² (детская, кабинет, гардеробная — на выбор)
Кухня-гостиная — 11, 7 м² (свободная планировка, удобно готовить и проводить время вместе)
Прихожая — 5, 4 м²
Совмещённый санузел — 5, 1 м² (просторный, без тесноты)

Состояние:

Свежий косметический ремонт — заезжайте сразу или добавьте свои штрихи.
Уже стоит кондиционер — комфорт в +35 °C гарантирован.

Свой участок земли — полная свобода: посадите овощи, фрукты, ягоды, разбейте сад. Можно завести кур, уток, гусей — подсобное хозяйство без проблем и без дачных взносов.
Соседи — дружные, спокойные, адекватные. Район зелёный, тихий, экологичный — идеально для постоянной жизни, многодетных семей, пенсионеров. При этом вся инфраструктура рядом: магазины, аптеки, поликлиники в пределах транспортной доступности.
Почему это выгодно:

Городская прописка + сельский тариф на свет = максимальная экономия
Большая площадь + участок = комфорт как в доме, но без хлопот с полным ИЖС
Подходит для ПМЖ, для сдачи летом (спрос в Анапе всегда!) или для большой семьи
Юридически чисто, без обременений, готова к сделке

Продажа прямо по цене от собственника.
Ипотека проходит без проблем (подходит под большинство банков).
Такие варианты с городской пропиской, своим участком, 5 комнатами и такой близостью к морю разбирают очень быстро!
Звоните / пишите в любое время — покажу удобно, включая вечера и выходные.
Торг реальный при хорошей сделке.
Цена: 3 599 000.
Это комфорт, пространство и экономия в одном предложении — не упустите!

Дата обновления: 21 марта 2026

Квартира От собственника Ипотека